110 S 33rd Street
South Bend,
IN
46615-3002
110 S 33rd Street
South Bend,
IN
46615-3002
4 Beds
4 Baths
2448 Sqft.
0.19 Acre Lot
$349,900
Interested? Contact One of Our Agents!
HOME DETAILS | 110 33rd
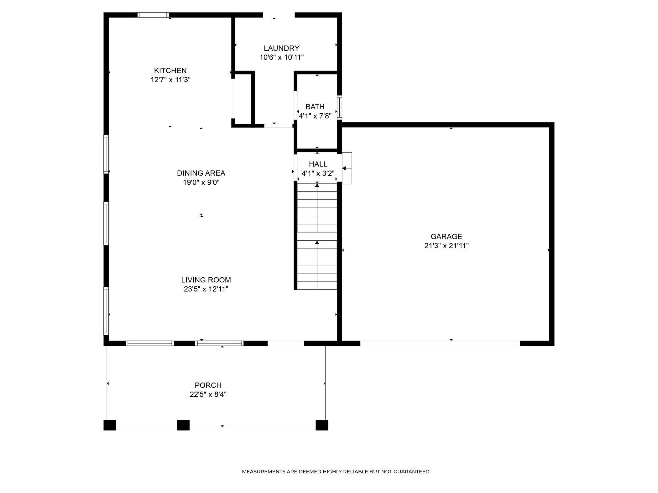
Affordable New Construction! Spacious and thoughtfully designed. This 4 bedroom 3.5 bath is ready for it's new owners! Traditional layout with 3 bedrooms and 2 full baths upstairs. Main level has living room, open concept kitchen, half bath, and laundry hook up. Basement has been finished and has an additional family room, full bath, and bedroom with egress. Large backyard. Nice finishes. Covered front porch. Convienent location to shops, restaurants, and the university.
| Listing Office |
Addresses Unlimited, LLC
|
|---|---|
| Listing Agent | Jen Arizmendi |
| MLS Number |
#202604428
|
| Listing Status |
Pending
|
General Info
Overview
Style
Two Story
Year Built
2025
Lot Dimensions
60X135
Square Footage
2448 sqft.
# Total Rooms
7
Bedrooms
Total # Bedrooms
4
Master Bedroom Level
Upper
2nd Bedroom Level
Upper
3rd Bedroom Level
Upper
4th Bedroom Level
Lower
Bathrooms
Full Baths
3
Half Baths
1
Total Baths
4
Other Rooms
Living/Great Room Dimensions: 23 x 12
Living/Great Rm Level
Main
Kitchen Dimensions: 12 x 11
Kitchen Level
Main
Dining Room Dimensions: 19 x 9
Dining Rm Level
Main
Laundry Level
Main
Utilities
Water Utility
City
Sewer
City
Additional Info
Garage Type
Attached
Garage/# of Cars
2.0
Fireplace
No
Property SubType
Site-Built Home
Pool
No
Waterfront
No
Unbranded Virtual Tour
Calculate Your Monthly Payment
Simply fill out the information below and find out what your approximate monthly payment would be.
Monthly Payment |
$ |
|---|---|
| Loan | $ |
| Taxes | $ |
| Insurance | $ |
School Info
Elementary School
Nuner
Middle School
Edison
High School
Adams
Public Schools Nearby
| Name | Grades | Rating | Distance |
|---|
Private Schools Nearby
| Name | Grades | Rating | Distance |
|---|
Location
110 S 33rd Street
South Bend,
IN
46615-3002
Directions
Jefferson to 33rd N to property
IDX information is provided exclusively for consumers’ personal, non-commercial use and may not be used for any purpose other than to identify prospective properties consumers may be interested in purchasing. Data is deemed reliable but is not guaranteed accurate by the MLS. IDX information provided by the Indiana Regional MLS.
