1123 N Twyckenham Drive
South Bend,
IN
46617-1635
1123 N Twyckenham Drive
South Bend,
IN
46617-1635
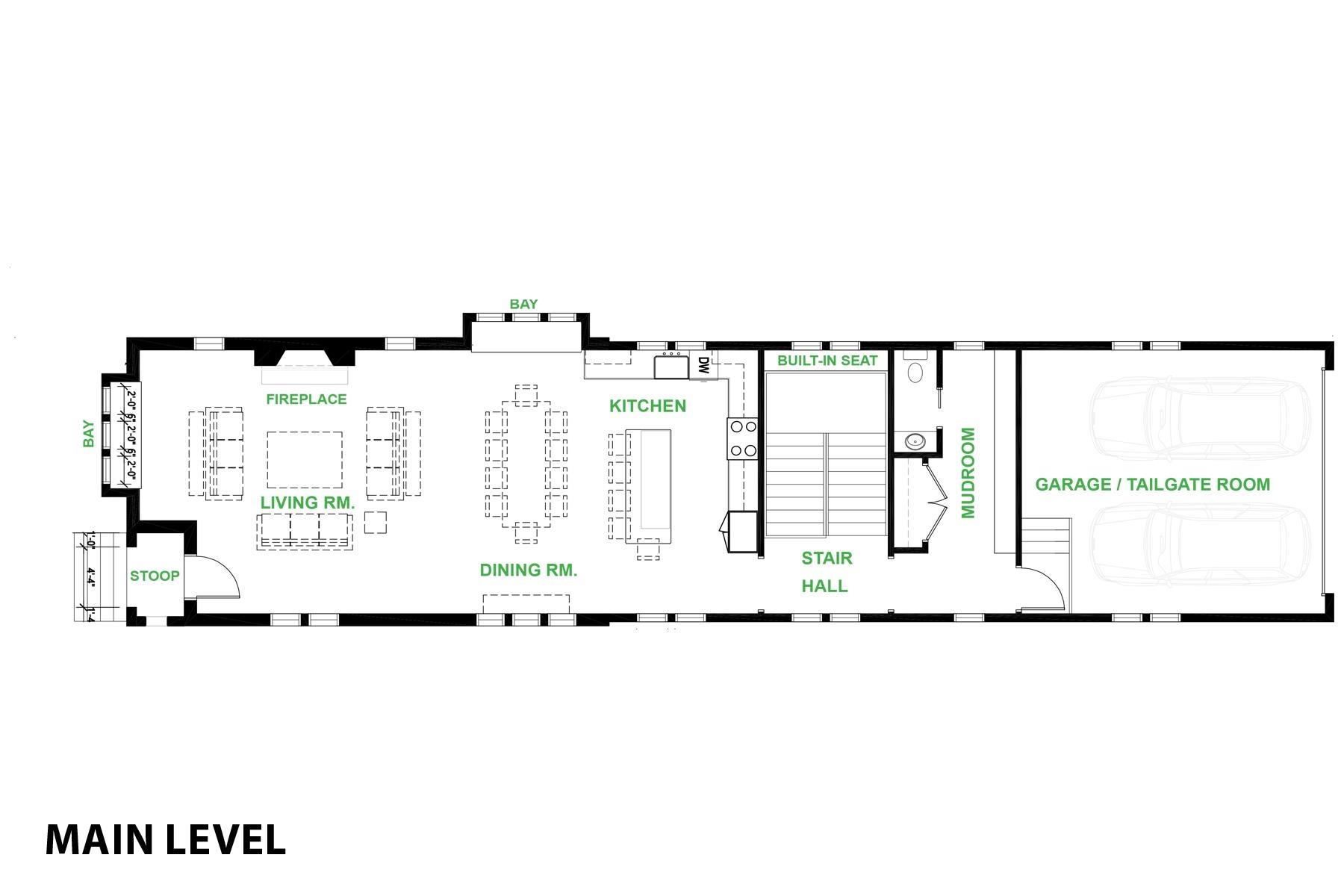
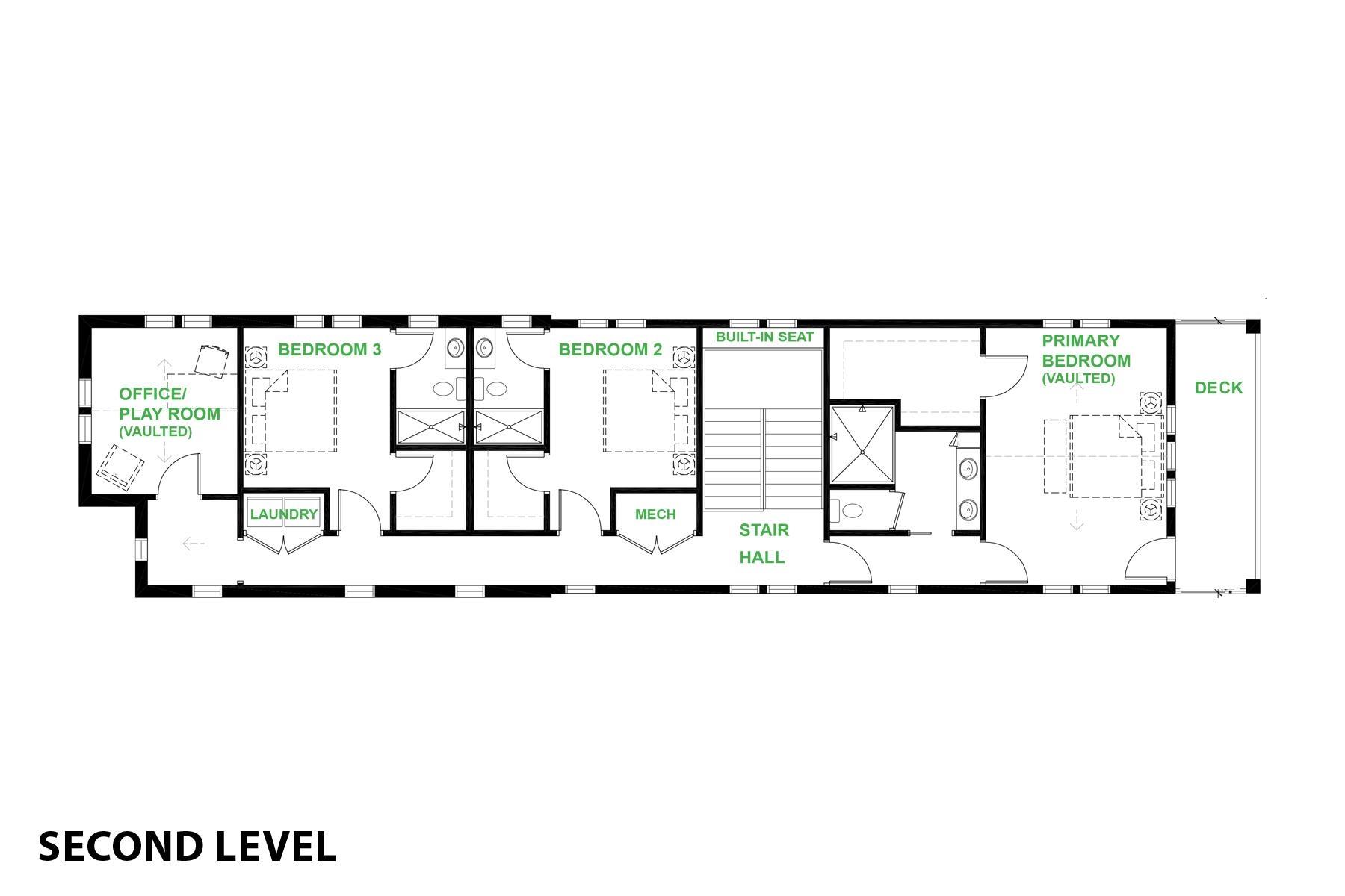
4 Beds
5 Baths
4560 Sqft.
0.09 Acre Lot
$1,675,000
Interested? Contact One of Our Agents!
HOME DETAILS | 1123 Twyckenham
Custom New Construction Modern Tudor less than 2 blocks south of Angela Blvd. and the renowned University of Notre Dame, with an easy walk to campus, Eddy Street Commons, and Trader Joe's. This home features just under 4500 sq. ft. of luxury finishes designed by Flourish Interiors and built by Allen Scott Construction. The second story deck offers views of Eddy St. and campus. The home backs up to Frederickson Park so you'll have no rear neighbors and access to trails and nature while being moments from campus. 4 spacious bedrooms all with en-suite full baths, tile showers, custom millwork and design. If you are a discriminating buyer looking for a multi-generational, near Notre Dame property....the wait will soon be over. Ground breaking was Jan. 2026 and home be available for occupancy around Nov 2026.
| Listing Office |
Irish Realty
|
|---|---|
| Listing Agent | Stephen Smith |
| MLS Number |
#202602714
|
| Listing Status |
Active
|
General Info
Overview
Style
Two Story
Year Built
2026
Lot Dimensions
33X125
Square Footage
4560 sqft.
# Total Rooms
12
Bedrooms
Total # Bedrooms
4
Master Bedroom Level
Upper
2nd Bedroom Level
Upper
3rd Bedroom Level
Upper
4th Bedroom Level
Lower
Bathrooms
Full Baths
4
Half Baths
1
Total Baths
5
Other Rooms
Laundry Level
Upper
Utilities
Water Utility
City
Sewer
City
Additional Info
Garage Type
Attached
Garage/# of Cars
2.0
Fireplace
Yes
# of Fireplaces
1
Property SubType
Site-Built Home
Pool
No
Waterfront
No
Unbranded Virtual Tour
Calculate Your Monthly Payment
Simply fill out the information below and find out what your approximate monthly payment would be.
Monthly Payment |
$ |
|---|---|
| Loan | $ |
| Taxes | $ |
| Insurance | $ |
School Info
Elementary School
Nuner
Middle School
Edison
High School
Adams
Public Schools Nearby
| Name | Grades | Rating | Distance |
|---|
Private Schools Nearby
| Name | Grades | Rating | Distance |
|---|
Location
1123 N Twyckenham Drive
South Bend,
IN
46617-1635
Directions
Twyckenham Dr. S of Angela on the W side of the street backing up to Federickson Park.
IDX information is provided exclusively for consumers’ personal, non-commercial use and may not be used for any purpose other than to identify prospective properties consumers may be interested in purchasing. Data is deemed reliable but is not guaranteed accurate by the MLS. IDX information provided by the Indiana Regional MLS.
