1902 Randolph Street
South Bend,
IN
46613
1902 Randolph Street
South Bend,
IN
46613
2 Beds
1 Baths
1320 Sqft.
0.09 Acre Lot
$90,000
Interested? Contact One of Our Agents!
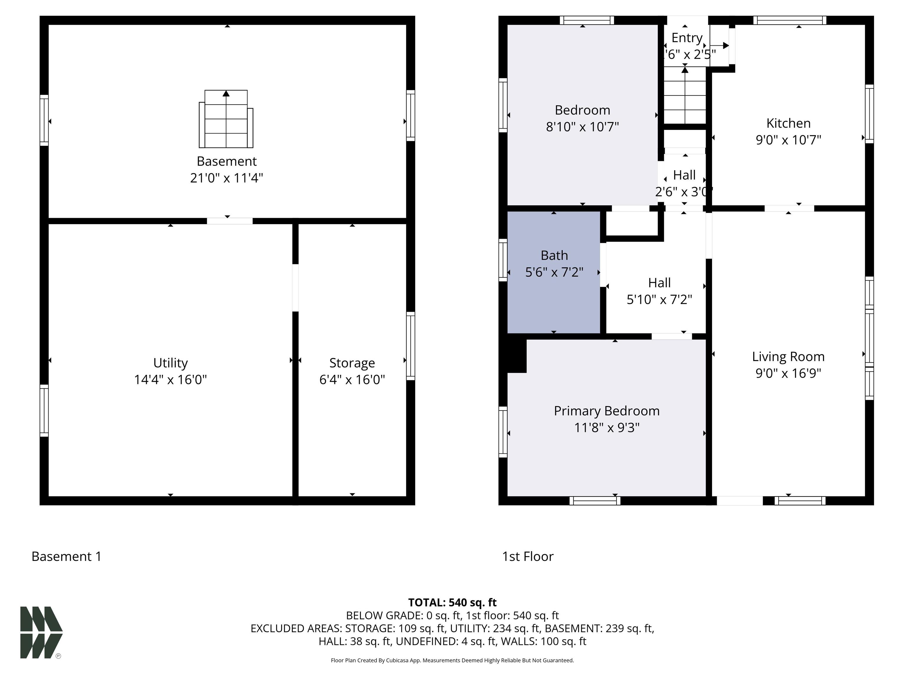
HOME DETAILS | 1902 Randolph
Investor Alert – 1902 Randolph Street, South Bend Auction pending—this is your chance to buy outright before the property hits the online auction block on December 17th 2025 ! Featuring 2 bedrooms, 1 bath, large fenced backyard , and detached 2 car garage, this Miami Village home offers solid bones and strong upside. Recent Everdry basement waterproofing and a new gas water heater (2024) provide key infrastructure upgrades. Property needs cosmetic and functional improvements, making it ideal for value-add investors ready to capitalize before bidding begins.
| Listing Office |
McKinnies Realty, LLC
|
|---|---|
| Listing Agent | Wayne Ryan |
| MLS Number |
#202545997
|
| Listing Status |
Active
|
General Info
Overview
Style
One Story
Year Built
1947
Lot Dimensions
40 x 100
Square Footage
1320 sqft.
# Total Rooms
5
Bedrooms
Total # Bedrooms
2
Master Bedroom Level
Main
2nd Bedroom Level
Main
Bathrooms
Full Baths
1
Total Baths
1
Other Rooms
Living/Great Room Dimensions: 9 x 16
Living/Great Rm Level
Main
Kitchen Dimensions: 9 x 10
Kitchen Level
Main
Laundry Level
Basement
Utilities
Water Utility
Public
Sewer
Public
Additional Info
Garage Type
Detached
Garage/# of Cars
2.0
Fireplace
No
Property SubType
Site-Built Home
Pool
No
Waterfront
No
Unbranded Virtual Tour
Calculate Your Monthly Payment
Simply fill out the information below and find out what your approximate monthly payment would be.
Monthly Payment |
$ |
|---|---|
| Loan | $ |
| Taxes | $ |
| Insurance | $ |
School Info
Elementary School
Lincoln
Middle School
Jackson
High School
Adams
Public Schools Nearby
| Name | Grades | Rating | Distance |
|---|
Private Schools Nearby
| Name | Grades | Rating | Distance |
|---|
Location
1902 Randolph Street
South Bend,
IN
46613
Directions
Ironwood drive south of Lincolnway E to Randolph ( turn West ) . Home is on the South side of street
IDX information is provided exclusively for consumers’ personal, non-commercial use and may not be used for any purpose other than to identify prospective properties consumers may be interested in purchasing. Data is deemed reliable but is not guaranteed accurate by the MLS. IDX information provided by the Indiana Regional MLS.
