509 N Arthur Street
South Bend,
IN
46617-2101
509 N Arthur Street
South Bend,
IN
46617-2101
3 Beds
3 Baths
1450 Sqft.
0.08 Acre Lot
$449,900
Interested? Contact One of Our Agents!
HOME DETAILS | 509 Arthur
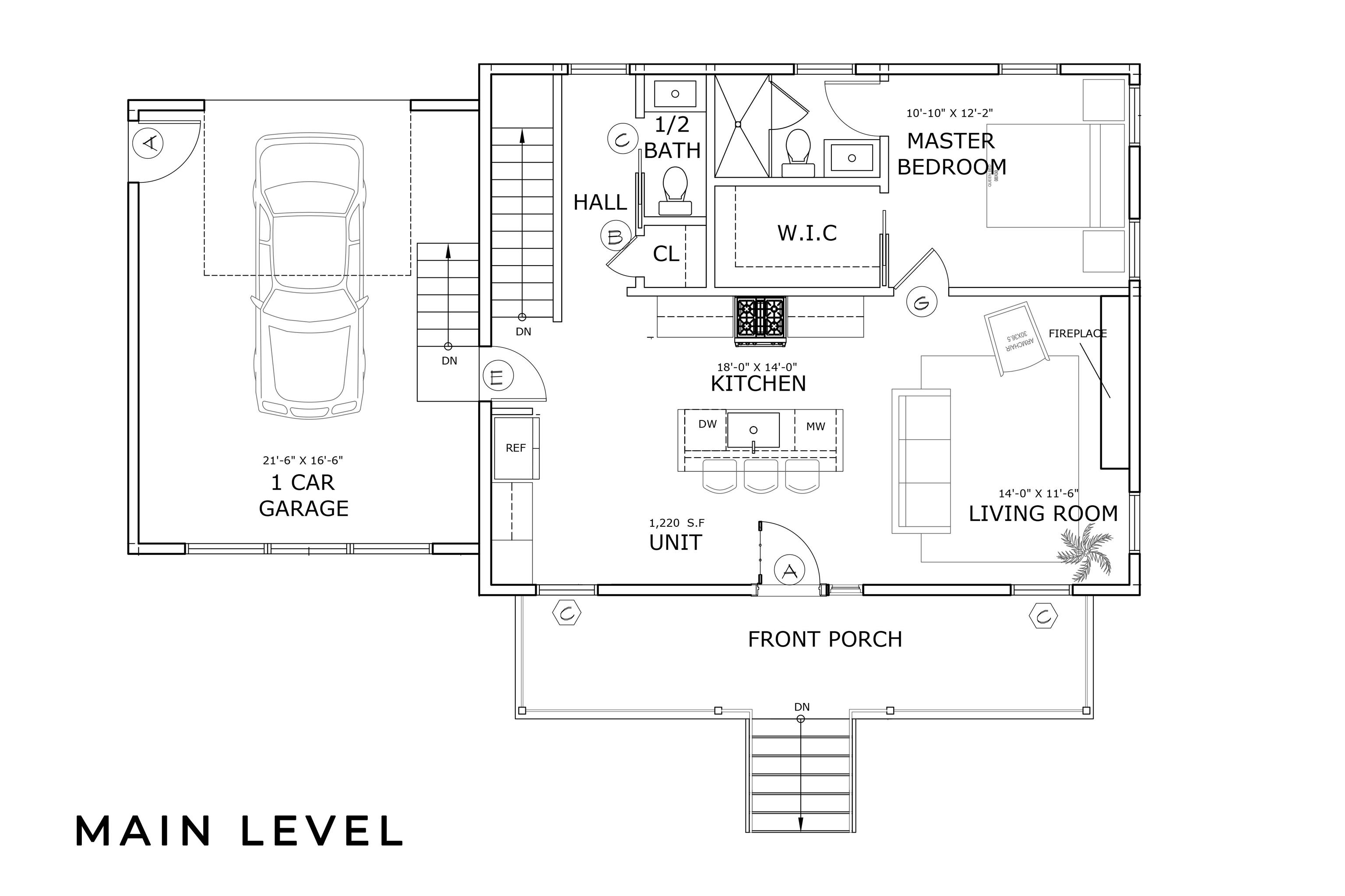
New construction just one mile from the University of Notre Dame! Discover the blend of convenience and comfort in this 3-bed, 2 full bath, 1 half bath ranch home moments from everything. Situated on a generous lot, this home offers you a single-car attached garage and an inviting open-concept layout with a cozy fireplace, perfect for all your game day festivities. The main floor primary suite features a walk-in closet for added ease, while two additional bedrooms and a family room in the lower level provide ample space for guests. Construction is underway, so don't wait - inquire today!
| Listing Office |
Irish Realty
|
|---|---|
| Listing Agent | Stephen Smith |
| MLS Number |
#202535944
|
| Listing Status |
Active
|
General Info
Overview
Style
One Story
Year Built
2025
Lot Dimensions
59X62
Square Footage
1450 sqft.
# Total Rooms
10
Bedrooms
Total # Bedrooms
3
Master Bedroom Level
Main
2nd Bedroom Level
Lower
3rd Bedroom Level
Lower
Bathrooms
Full Baths
2
Half Baths
1
Total Baths
3
Other Rooms
Laundry Level
Lower
Utilities
Water Utility
City
Sewer
City
Additional Info
Garage Type
Attached
Garage/# of Cars
1.0
Fireplace
Yes
# of Fireplaces
1
Property SubType
Site-Built Home
Pool
No
Waterfront
No
Unbranded Virtual Tour
Calculate Your Monthly Payment
Simply fill out the information below and find out what your approximate monthly payment would be.
Monthly Payment |
$ |
|---|---|
| Loan | $ |
| Taxes | $ |
| Insurance | $ |
School Info
Elementary School
Nuner
Middle School
Jefferson
High School
Adams
Public Schools Nearby
| Name | Grades | Rating | Distance |
|---|
Private Schools Nearby
| Name | Grades | Rating | Distance |
|---|
Location
509 N Arthur Street
South Bend,
IN
46617-2101
Directions
From Eddy Street head east on Cedar St Turn left on Arthur Home is on the left
IDX information is provided exclusively for consumers’ personal, non-commercial use and may not be used for any purpose other than to identify prospective properties consumers may be interested in purchasing. Data is deemed reliable but is not guaranteed accurate by the MLS. IDX information provided by the Indiana Regional MLS.
