624 C N Notre Dame Avenue
              
    
          South Bend,     
          IN
                    46617-5705
                                                
  
            
        
    
        624 C N Notre Dame Avenue
              
    
          South Bend,     
          IN
                    46617-5705
                                                
                            1                            Beds
                        
                        
                            1                            Baths
                        
                        
                            550                            Sqft.
                        
                        
                            0.63                            Acre Lot
                        
                    
        $369,900
Interested? Contact One of Our Agents!
HOME DETAILS | 624 C N Notre Dame
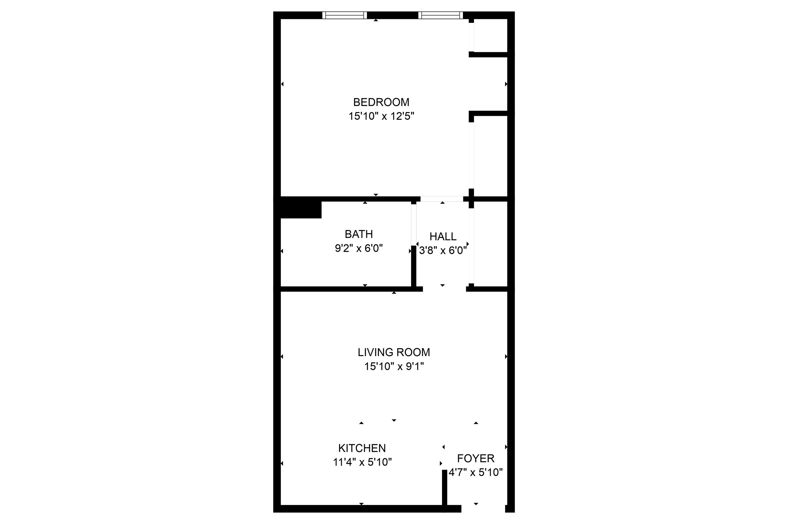
        The Residences on Notre Dame Ave are the newest addition to the walkable Notre Dame market! Just one block from Trader Joe's and Eddy Street Commons, these homes offer a prestigious address with stunning views of the Golden Dome. This beautifully renovated 1 bed, 1 bath townhome blends modern luxury with convenience. The open-concept living area boasts luxury vinyl plank flooring, stainless steel appliances, custom cabinetry, and upgraded moulding throughout. With no rental restrictions, you can enjoy your home while generating extra income. Don't miss this rare opportunity! Call for a showing today! ** 1-car Detached garage included in the current offered price)**
| Listing Office | 
 
        Irish Realty
 
 | 
                        
|---|---|
| Listing Agent | Stephen Smith | 
| MLS Number | 
 
        #202532216
 
 | 
                        
| Listing Status | 
 
        Active
 
 | 
                        
General Info
Overview
        Style
        Townhouse
                                                
        Year Built
        2011
                                                                                                
        Lot Dimensions
        181x151
                                                                                                                                                
        Square Footage
        550 sqft.
                                                                                                
        # Total Rooms
        3
                                            Bedrooms
        Total # Bedrooms
        1
                                                                                                
        Master Bedroom Level
        Upper
                                                                                                
                                                                                                
                                                                                                
                                                                                                                                            Bathrooms
        Full Baths
        1
                                                                                                
                                                                                                
        Total Baths
        1
                                            Other Rooms
        Laundry Level
        Main
                                                
                                            Utilities
        Water Utility
        City
                                                
                                                
                                                
        Sewer
        City
                                                
                                                
                                                
                                            Additional Info
        Garage Type
        Detached
                                                                                                
        Garage/# of Cars
        1.0
                                                                                                
        Fireplace
        No
                                                
                                                
        Property SubType
        Condo/Villa
                                                
        Association Dues $
        325.00
                                                                                                
        Pool
        No
                                                
                                                                                                
        Waterfront
        No
                                                
                                                
                                                Unbranded Virtual Tour
Calculate Your Monthly Payment
Simply fill out the information below and find out what your approximate monthly payment would be.
Monthly Payment | 
                            $ | 
                        
|---|---|
| Loan | $ | 
| Taxes | $ | 
| Insurance | $ | 
School Info
        Elementary School
        Nuner
    
        Middle School
        Jefferson
    
        High School
        Adams
Public Schools Nearby
| Name | Grades | Rating | Distance | 
|---|
Private Schools Nearby
| Name | Grades | Rating | Distance | 
|---|
Location
        624 C N Notre Dame Avenue
              
    
          South Bend,     
          IN
                    46617-5705
                                                Directions
                
        Take South Bend Ave west of Eddy St., turn south on Notre Dame Ave, drive past the unit and turn in to parking in the rear.
        
IDX information is provided exclusively for consumers’ personal, non-commercial use and may not be used for any purpose other than to identify prospective properties consumers may be interested in purchasing. Data is deemed reliable but is not guaranteed accurate by the MLS. IDX information provided by the Indiana Regional MLS.
                